animateMainmenucolor
activeMenucolor
Главная
Лизинг
Буровая установка УРБ 2.5 А
Характеристики
Устройство УРБ 2.5 А
Подготовка к работе
Меры безопасности
Смазка буровой установки
Возможные неисправности
Бурение
Буровое оборудование
Геофизические приборы
Буровые установки
Буровой инструмент
Запчасти УРБ
Горные породы
Контакты
Буровая установка
УРБ 2,5 А
ООО "Аумаз"
Главная
О фирме
Буровые установки
Контакты
Главная
Лизинг
Буровая установка УРБ 2.5 А
Характеристики
Устройство УРБ 2.5 А
Подготовка к работе
Меры безопасности
Смазка буровой установки
Возможные неисправности
Бурение
Буровое оборудование
Геофизические приборы
Буровые установки
Буровой инструмент
Запчасти УРБ
Горные породы
Главная
/
Буровое оборудование
/
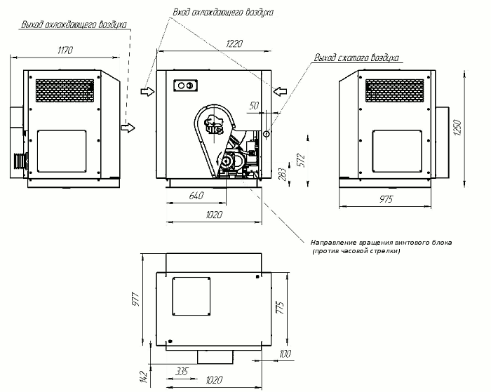
Установка компрессорная АК - 9/10
/ Габаритный чертеж АК 9/10
Габаритный чертеж компрессорной установки АК 9/10